子育て世代にちょうどいい!
スタイリッシュで機能的な
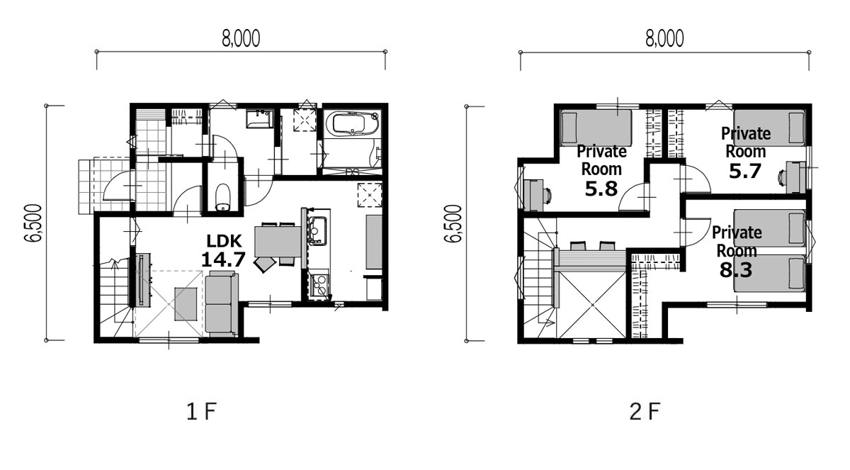
コンパクトハウス
広くない土地でも建てられる2階建てを、
手の届く価格に仕上げた
COZY(居心地の良い)HOUSE。
デザイン性や経済性、動線の工夫など、
子育て家族に求められる特徴がいっぱい。
-
選べる5つのスタイル個性的でおしゃれな5つのスタイルから、お好みのものをお選び頂けます。
「ブルックリンスタイル」「カリフォルニアスタイル」「シンプル&モダンスタイル」「インダストリアルスタイル」に加え、人気の北欧テイストの「ノルディックスタイル」をラインナップしました。

-
家族が集まりやすい間取りキッチンと一体になった明るいリビング・ダイニングは、家族が自然と集まる、くつろぎの空間。食事の支度をしながら子どもを見守ることが出来るから、家族の会話も弾みます。

-
コンパクトだから経済的!シンプルな設計だから、建築時のコストや将来のメンテナンス費が抑えられ、とっても経済的。そして高断熱性能に優れた省エネ住宅であるため、構造的にも安定しやすいと言われています。



-
子育てエコホーム支援事業対応
COZY HOUSEでは、子育て世帯・若者夫婦世帯の場合、5つの外装スタイルどれを選んで頂いても、全て子育てエコホーム支援事業の補助金の対象となります。補助金を工事費に充てて、吹き抜けを部屋に変更、面積を増やして1部屋追加、などのカスタマイズも可能です。
-
アンバー色のレンガ調外壁で憧れの大人ヴィンテージを実現。工場のような非日常デザインと、生活感をミックスさせた仕上がりが、毎日をワクワクする暮らしに。
- *別プランは右にスライドしてご覧ください
- 他にもプランが多数ございますので、
お近くのお店にお問い合わせください。
-
明るい日差しに映える白壁と白いカバードポーチが印象的。ウッドデッキでは、光や風を感じながらくつろぐことができ、バーベキューを楽しめます。
- *別プランは右にスライドしてご覧ください
- 他にもプランが多数ございますので、
お近くのお店にお問い合わせください。
-
水平ラインを強調したスタイリッシュなスクエアデザインの外観。吹抜けのリビングからウッドデッキへとつながり、コンパクトでありながら開放的な空間を演出。
- *別プランは右にスライドしてご覧ください
- 他にもプランが多数ございますので、
お近くのお店にお問い合わせください。
-
ブラックのサイディングをベースに木目調のサイディングでアクセント。アイアンや木材を使った家具が似合う重厚感と、やさしい木の温もりを感じられます。
- *別プランは右にスライドしてご覧ください
- 他にもプランが多数ございますので、
お近くのお店にお問い合わせください。
-
「無駄をなくし、自分たちの本当に好きなものに囲まれて心豊かに暮らす」。北欧のシンプルで心地よい暮らしをモチーフに誕生しました。北欧モダンの住まいです。
- *別プランは右にスライドしてご覧ください
- 他にもプランが多数ございますので、
お近くのお店にお問い合わせください。
いい間取りには、
自然と共感できる
自然と共感できる
いい間取りというのは、 パッと目の前に出された瞬間にわかります。
その答えは、まずシンプルであるということ。
そして、それがきちっと生活の動きに合っていること。
家の使い勝手は「動線」が大きなポイント。
「動線」の設計こそ、プロの腕の見せどころです。
『いまどきの子育て』と『家事がはかどる』を
考え抜いた間取りの一部をご紹介します。
新たな動線計画
ハビステーション
ハビステーションとは?
habitation(習慣化)+station(局・位置)= habistation「ハビステーション」
新しい生活様式を無理に取り入れず、子供も大人も毎日繰り返すことで自然と身につき、習慣化する「スポット」という意味を込めネーミングしました。
靴を脱ぎ → 上着荷物を片付ける → 手洗いのパッケージ
コロナ禍において、帰宅時の着替え・手洗いうがいが、住まいにウイルスを持ち込まない新しい生活習慣として提唱されてきました。この新しい生活習慣は、新型コロナウイルス対策だけでなく、インフルエンザの予防、さらには花粉等のアレルゲンを生活エリアに持ち込まない、清潔で健康な暮らしにつながります。
ただ、この「新しい生活様式を取り入れましょう。」と呼びかけても、大人は理解できても小さな子どもは自発的に行動することが難しいです。特に住宅の間取りについては、玄関からリビングを通り抜けないと洗面にたどり着かなかったり、個室に行かないと上着をしまう場所がないなど、すぐに実行に移せないハード面での問題がありました。そこで、玄関から入って、靴を脱ぎ、上着や荷物を片付けて、そして手洗いをする、という行動を住宅の間取りのパッケージ“ハビステーション”としてデザインいたしました。
子育て家族の新しい習慣「ハビステーション」が
第15回「キッズデザイン賞」を受賞しました。
ACE HOME では時代のニーズに合わせて、子育て家族に
優しい間取りを企画することに取り組んでいます。
ハビステーションは、「土間収納」「ファミリークローク」「洗面」を隣接して配置することで、5つの生活動線を提案することができます。必要なスペースを集約することで、無駄な廊下が無くなり、スムーズにお片付けや家事をすることができます。玄関から収納、手洗いまでのアクセスだけにとどまらず、忙しい子育て世代の味方となる動線計画が詰め込まれています。
子育て世代の味方 5つの生活動線
-
01.効率的な家事動線
「ハビステーション」は、玄関から収納、手洗いまでのアクセスだけにとどまらず、洗濯室とキッチンへの動線も確保しています。掃除や洗濯が効率的に行えて忙しい子育て世代の味方です。
-
02.自然と身に付く
子供の習慣化住宅の間取りにこの「ハビステーション」を取り入れるだけで、大人から指示をされずとも、帰宅後にその動線を通りながら新しい生活習慣を自然と身に着けることができます。
そして、リビング近くに洗面があることで日常的に家庭内での定期的な手洗いうがいの実施も取り入れることもできます。
-
03.出し入れ楽々
片付動線子育てに嬉しい土間収納が標準装備。ベビーカーや三輪車などをすぐにしまえて出し入れが自在です。
大きな収納を集中させることで、家が散らからず片付けもスムーズになります。
-
04.自然と家族が集まる
リビングダイニング「ハビステーション」を取り入れる事で、水廻りや収納がまとまり無駄な廊下がなくなります。
そうすることで、どの部屋もリビングダイニングでつながり自然とリビングダイニングに家族が集まります。
-
05.来客者の
手洗い動線手洗いと洗濯室を分離することにより、洗濯物を気にせずに、来客事の手洗い動線をしっかり確保することができます。
ACE HOME の住宅は
様々な分野で受賞しています!
独自の断熱性能「CC断熱」が
高く評価されています
一般財団法人日本地域開発センター主催の「ハウス・オブ・ザ・イヤー・イン・エナジー」において寒冷地域(3、4地域)では優秀賞、一般地域(5〜7地域)では特別優秀賞と、それぞれの地域に応じた仕様でW受賞しました。
さらに連続で受賞している企業に与えられる省エネ住宅優良企業賞も受賞しました。
















